Sold

$430,000

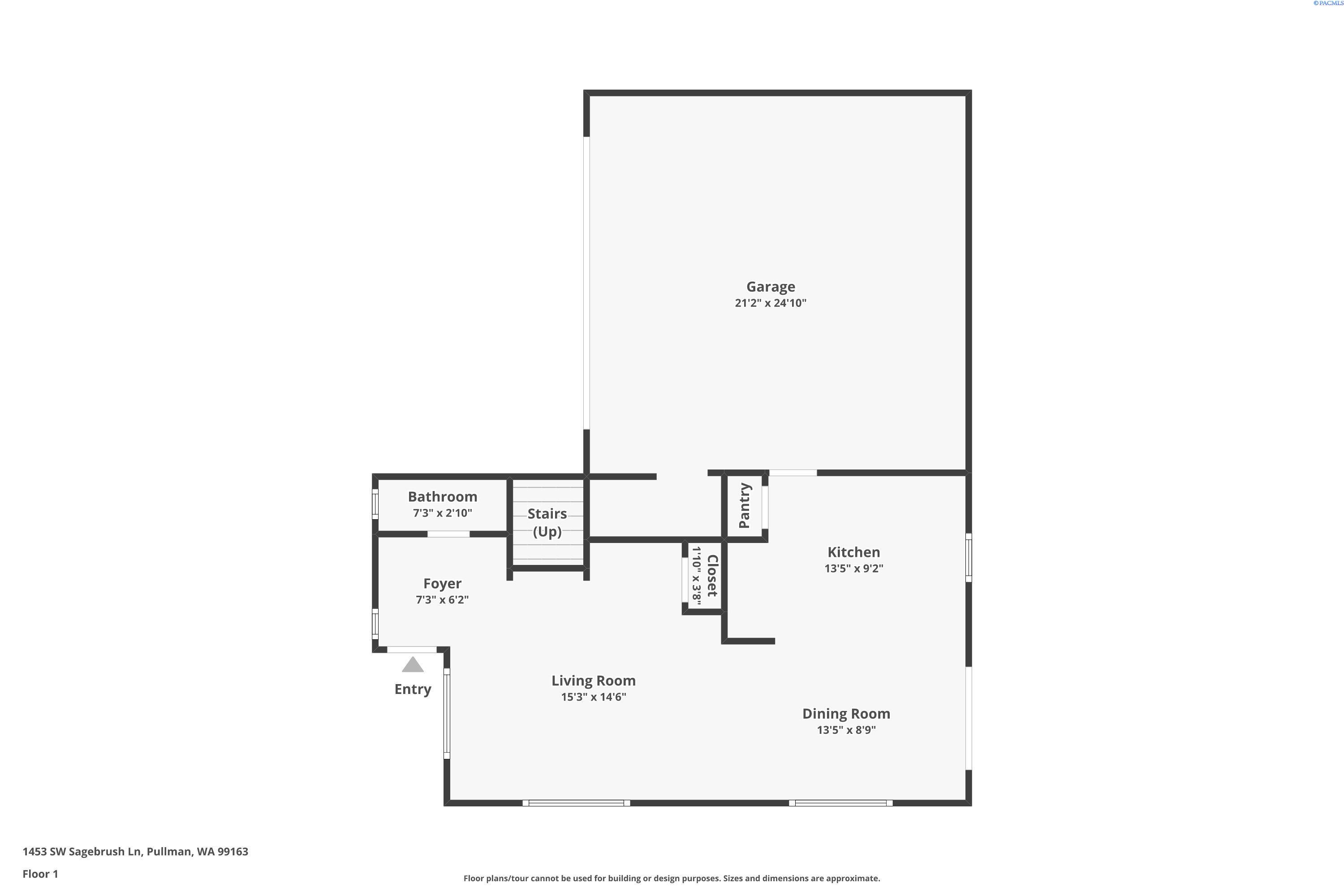
1453 SW Sagebrush Lane, Pullman, WA 99163

3 Beds
3 Baths
1,660 Sq.Ft.
Est. payment from /mo Get Pre-Approved

Property Description

MLS# 284485 Discover relaxed living in this well-maintained home set in the sought-after Whispering Hills neighborhood. With a practical layout, abundant natural light, and thoughtful features throughout, this home is both functional and welcoming.The main level offers a spacious front living area, an open dining zone, and a generous kitchen with ample counter space and a walk-in pantry. Direct entry from the two-car garage makes everyday tasks easier, and a convenient powder room adds extra comfort for guests. Large windows and a sliding glass door connect the indoors to the private backyard--perfect for enjoying a little sunshine or hosting a laid-back get-together.Upstairs, you'll find three bedrooms that each enjoy dedicated access to a bathroom--ideal for maintaining privacy and simplifying busy mornings. The primary suite features a vaulted ceiling, an expansive closet, and its own en-suite bath, while the two secondary bedrooms share a connected bath with dual access. The laundry room is also upstairs for added convenience.Outside, the fenced backyard is level and easy to care for--offering plenty of room to garden, play, or simply relax. With central A/C, well-proportioned rooms, and a comfortable flow throughout, this home is ready for its next chapter.Virtual tour available--don't miss your opportunity to see it for yourself. Some photos have been virtually staged.
MLS# 284485 Discover relaxed living in this well-maintained home set in the sought-after Whispering Hills neighborhood. With a practical layout, abundant natural light, and thoughtful features throughout, this home is both functional and welcoming.The main level offers a spacious front living area, an open dining zone, and a generous kitchen with ample counter space and a walk-in pantry. Direct entry from the two-car garage makes everyday tasks easier, and a convenient powder room adds extra comfort for guests. Large windows and a sliding glass door connect the indoors to the private backyard--perfect for enjoying a little sunshine or hosting a laid-back get-together.Upstairs, you'll find three bedrooms that each enjoy dedicated access to a bathroom--ideal for maintaining privacy and si...
Read More

Interior

Full Bathrooms
2 Full Baths
Half Bathrooms
1
Flooring
Carpet, Laminate, Vinyl
Appliances
Appliances-Electric, Appliances-Gas, Dishwasher, Dryer, Microwave, Range/Oven, Refrigerator, Washer, Water Heater
Other Interior Features
Bath - Master, Master Suite, Pantry, Counters - Granite/Quartz, High Ceilings, Utilities in Garage

Area & Lot

Total Area
1,660 Sq.Ft.
Lot Size
3,619.84 Sq.Ft.
MLS® ID
284485
Type
Residential
Year Built
2013
School District
Pullman

Exterior & Building

Stories
2
Garage Spaces
2.0
Water Source
Public
Utilites
Cable Connected, Electricity Connected, Natural Gas Connected, Sewer Connected
Roof
Composition
Lot Features
Animals Allowed, Located in City Limits, Cul-De-Sac
Parking
Attached, 2 car, Garage Door Opener
Heat Type
Forced Air, Gas - Heating
Air Conditioning
Central Air

Finance

Reduced Price
Price Upon Request
Real Estate Taxes
$3,461/yr
HOA Fees
$272/yr
Zoning
Residential
1453 SW Sagebrush Lane
name

Work With Jordan

link