Sold

$458,000

535 SE Water St., Pullman, WA 99163

5 Beds
3 Baths
2,432 Sq.Ft.
Est. payment from /mo Get Pre-Approved

Property Description

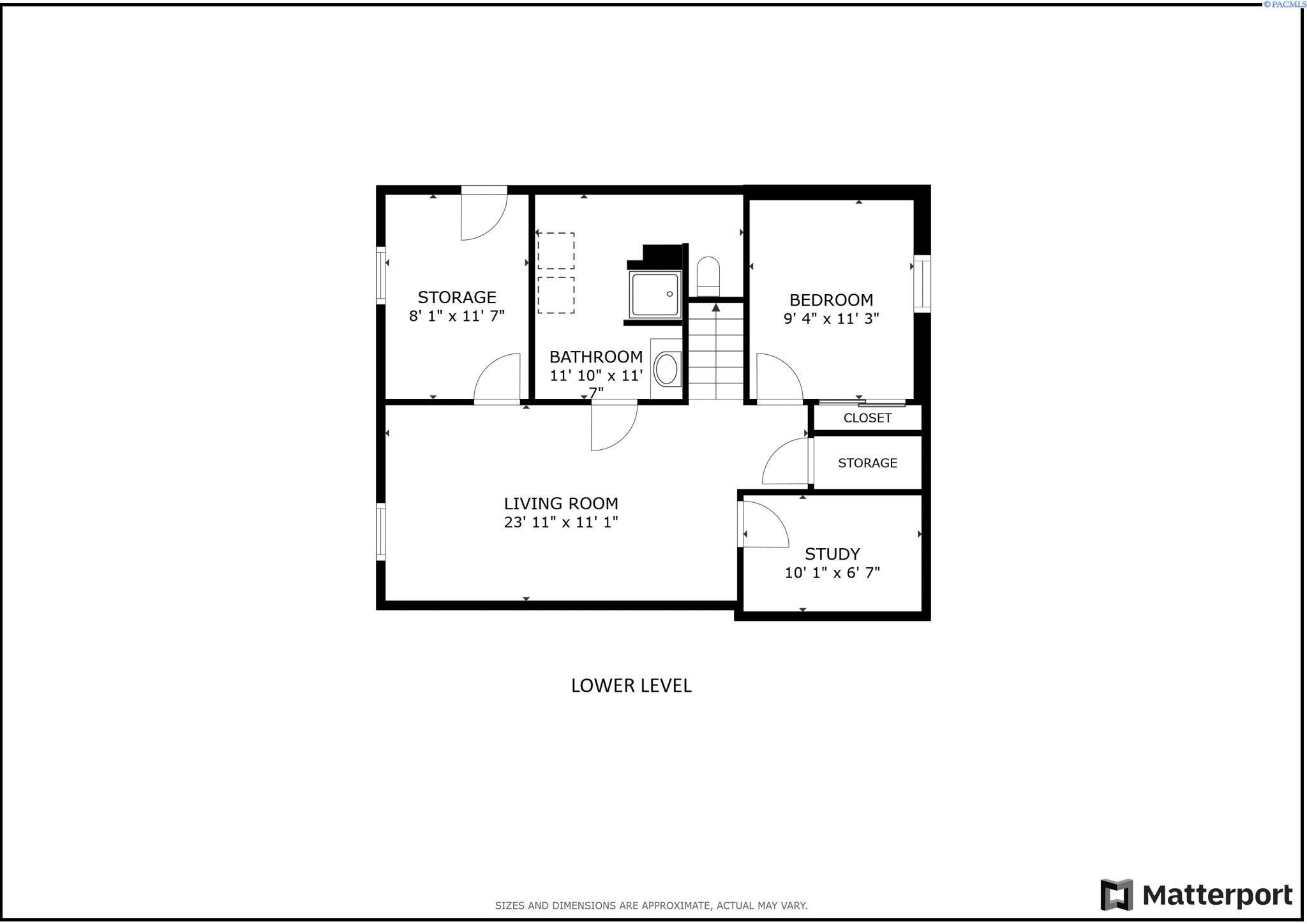
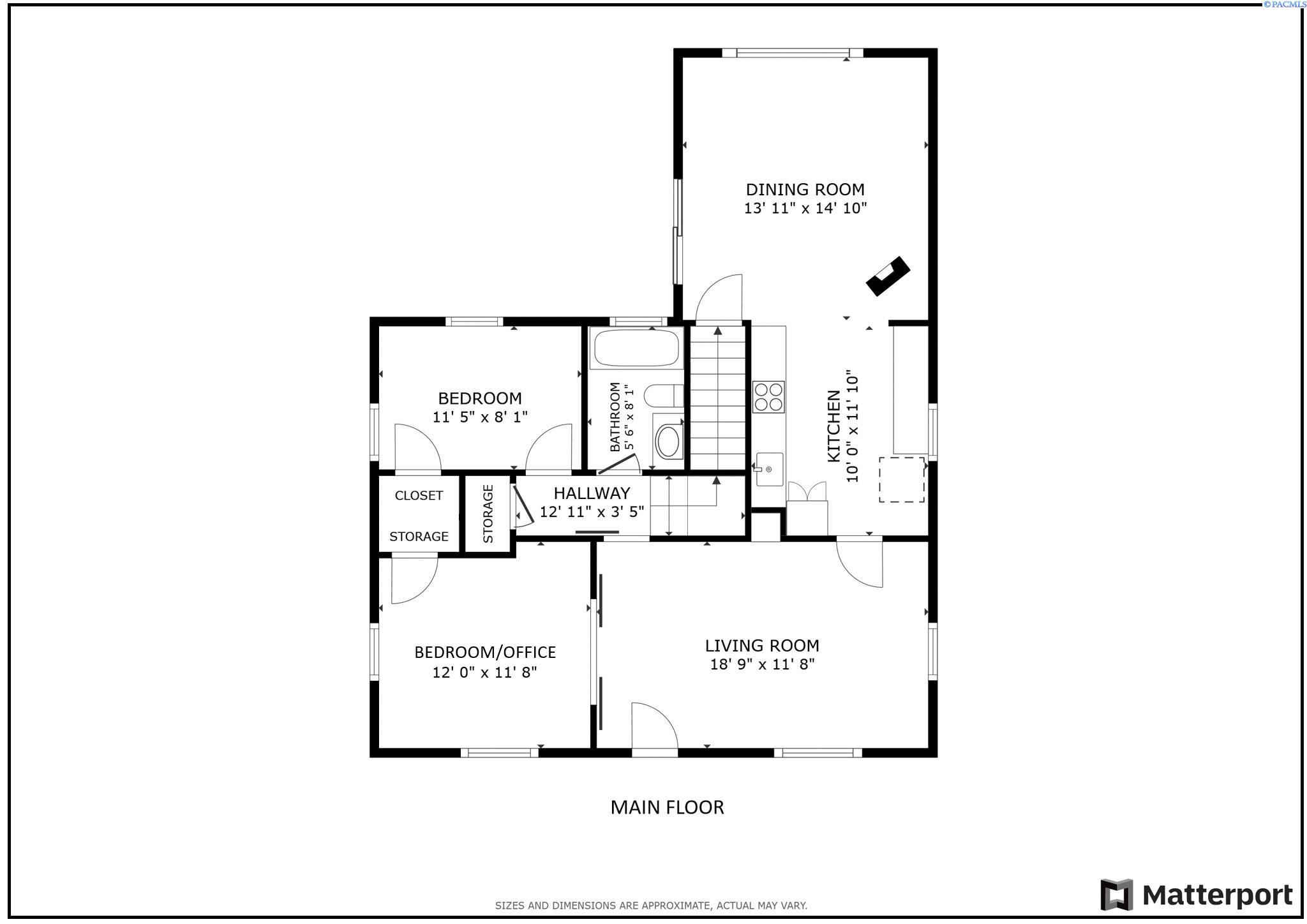
MLS# 282890 MLS# 281932 This is an incredible opportunity to own a 5 bedroom 3 bath vintage charmer steps from Krugel Park which has been updated. Updates include new exterior gray paint, a new roof, new windows, new stainless steel appliances, a four mini-split system for all your heating and cooling needs, a remodeled basement with new flooring, a remodeled bathroom, refinished hardwood floors and new step risers, and a new garage door with a new electrical line to the garage. This home features a large living room with barn door double doors to a separate office/bedroom area with beautiful hardwood floors. The kitchen is spacious, with stainless steel appliances including double ovens. The adjoining dining area is super cozy with large picture windows and a gas insert overlooking the side deck and back yard with easy access through the sliding glass door. This floor also features a main floor bedroom, also with hardwoods, and an updated full bath. The charming upstairs with dormer windows and beadboard features two additional large bedrooms plus an additional family area or office. Downstairs features new laminate floors with a large family room, a fourth bedroom, bath/ laundry room and office or pantry area. Other great features include a garage/shop, a very large backyard with an Italian plum tree and mature raspberries, and an Asian pear and Bartlett pear in the front yard. Check out the floorplans and the Matterport 3D Virtual Tour link of this listing.
MLS# 282890 MLS# 281932 This is an incredible opportunity to own a 5 bedroom 3 bath vintage charmer steps from Krugel Park which has been updated. Updates include new exterior gray paint, a new roof, new windows, new stainless steel appliances, a four mini-split system for all your heating and cooling needs, a remodeled basement with new flooring, a remodeled bathroom, refinished hardwood floors and new step risers, and a new garage door with a new electrical line to the garage. This home features a large living room with barn door double doors to a separate office/bedroom area with beautiful hardwood floors. The kitchen is spacious, with stainless steel appliances including double ovens. The adjoining dining area is super cozy with large picture windows and a gas insert overlooking the...
Read More

Interior

Full Bathrooms
1 Full Baths
Three Quarter Bathrooms
2
Flooring
Carpet, Laminate, Vinyl
Fireplace
1, Freestanding Stove-Nat Gas
Appliances
Dishwasher, Dryer, Oven, Refrigerator, Washer, Range
Other Interior Features
Laminate Counters, Storage

Area & Lot

Total Area
2,432 Sq.Ft.
Lot Size
7,405.2 Sq.Ft.
MLS® ID
282890
Type
Residential
Year Built
1946
Neighborhood
Pioneer Hill

Exterior & Building

Stories
1
Garage Spaces
1.0
Water Source
Public
Utilites
Sewer Connected
Roof
Composition
Lot Features
Located in City Limits, See Remarks
Parking
Detached, 1 car
Heat Type
Heat Pump
Air Conditioning
Heat Pump
Substructure
Concrete Perimeter

Finance

Reduced Price
Price Upon Request
Real Estate Taxes
$3,316/yr
Zoning
Residential
535 SE Water St.
name

Work With Jordan

link